Quex Road, Kilburn, NW6

2 Bedroom Flat For Sale

£400,000

  • 2 bedrooms
  • 1 bathroom
  • 1 reception
  • Key Information:

Key Features

  • Development opportunity
  • Planning permission approved to convert back into a residential unit
  • 2 bedrooms
  • Open-plan kitchen/ reception room
  • Walking distance to multiple transport links
  • A short stroll to amenities
  • 125 year lease
  • Chain free

Description

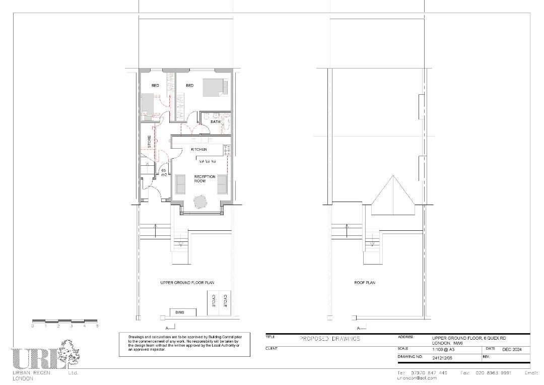
Nestled in the vibrant heart of NW6, Quex Road presents a remarkable opportunity for investors, developers, or those seeking a new home. This flat has recently secured planning approval for conversion back into a residential unit, making it an enticing prospect for refurbishment and development.

The plans for the property boast a spacious reception room that seamlessly integrates with an open-plan kitchen, creating a welcoming space for both relaxation and entertaining. Additionally, the plans feature two well-proportioned bedrooms, ensuring ample room for comfort. The modern bathroom/WC will add a touch of contemporary convenience, making this flat a practical choice for everyday living.

Located in the lively Kilburn/West Hampstead area, residents will enjoy excellent transport links, providing easy access to central London and beyond. The neighbourhood is rich with a diverse array of shopping options, from local boutiques to larger retail outlets, catering to all your needs. Furthermore, a variety of recreational facilities are nearby, offering opportunities for leisure and relaxation.

Whether you are looking to invest in a promising development project or seeking a vibrant place to call home, this property on Quex Road is an ideal opportunity to put your own stamp on this exceptionally located property. Embrace the potential of city living in one of London’s most sought-after areas.


Location


Floorplan

Floorplan for Quex Road, Kilburn, NW6

EPC

EPC for Quex Road, Kilburn, NW6

Similar Properties