Brondesbury Villas ,Queens Park, NW6

2 Bedroom Flat

£2,600 PCM

  • 2 bedrooms
  • 2 bathrooms
  • 1 reception
  • Key Information:
  • Council Tax: C

Description

A luxurious one of a kind, spacious and very well presented two bedroom apartment in a luxury grand period conversion, ground floor with private entrance.

This amazing apartment comprises two spacious double bedrooms both with built-in wardrobes, two contemporary bathrooms, fully equipped kitchen with integrated appliances, separate utility area, large reception with bi-fold doors leading to a private landscaped garden. The apartment further benefits from luxurious high specification decor including walnut solid floors, retained features, chandeliers. Available from the 25th of October. Brondesbury Villas is a quiet and convenient residential street with Queens Park, Kilburn High Road and Kilburn Park stations moments away. The property is located within easy reach of the amenities of Kilburn High Road, lovely cafes and bars of Salusbury Road and close to Paddington Recreation Ground.

To arrange a viewing please contact Jorgensen Turner estate agents Queens Park NW6 branch.
Council tax band C, one week`s holding deposit required, 5 weeks damage deposit required


Location


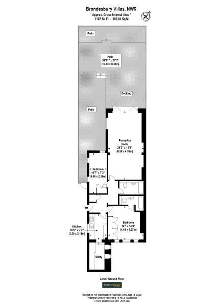
Floorplan

Floorplan for Brondesbury Villas ,Queens Park, NW6

EPC

EPC for Brondesbury Villas ,Queens Park, NW6

Similar Properties