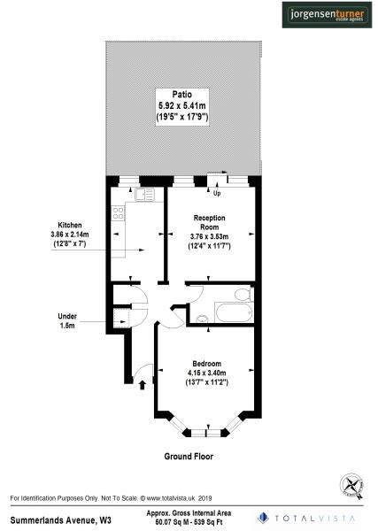
*** NEW TO THE MARKET *** Jorgensen Turner estate agents are proud to offer this fantastic one-bedroom ground floor flat moments from Acton High Street and Acton Town station. The property is well decorated throughout and comprises: one bedroom, generous reception, separate modern kitchen and a contemporary bathroom. It also offers access to a nice shared garden and off-street parking. Inundated with natural light further benefits include double glazed windows and good storage. Offered to the market furnished and available immediately. Early viewings are highly recommended.